← Return to Portfolio

Lijiang Villa

Private villa in Lijiang

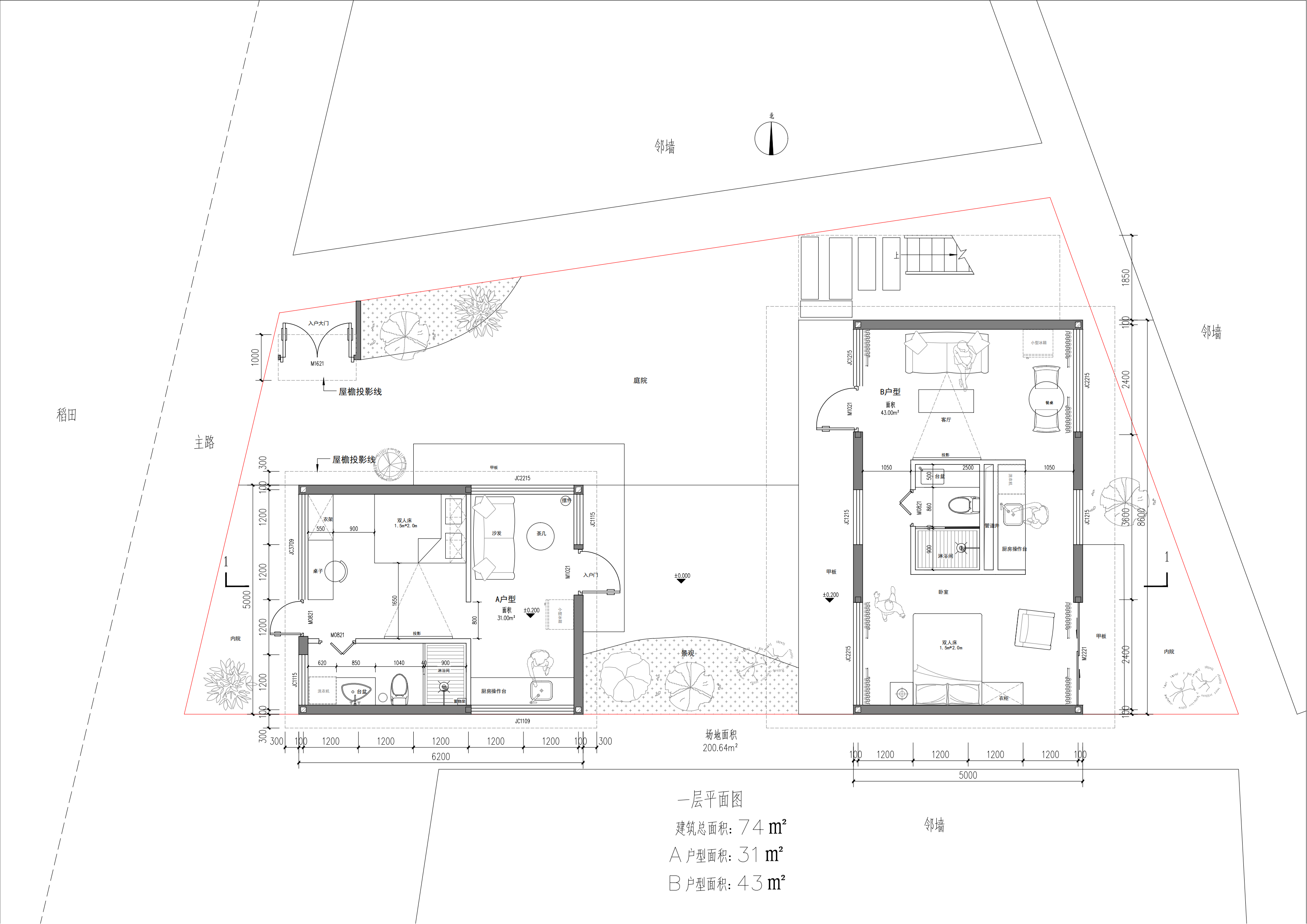
Front View Back View Bathroom Livingroom Livingroom Overview Floor Plan Interior 1 Interior 2 Interior 3 Interior 4 Interior 5 Interior 6 Interior 7 Interior 8